Quadrilocale in vendita

Dueville, Via I' Maggio - Reonda
€ 188.000
4 locali 4 locali
153 Mq 153 Mq
1 bagno 1 bagno

Quadrilocale in vendita

Dueville, Via I' Maggio - Reonda

Descrizione annuncio

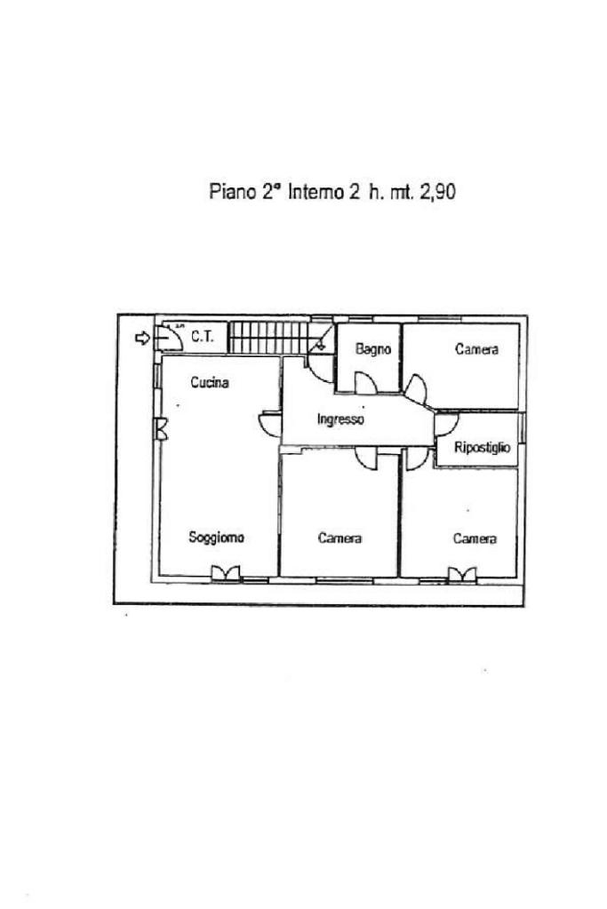
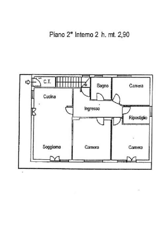
A pochi passi dal Centro di Dueville nel proponiamo un ampio appartamento di circa 130 mq, ideale per chi cerca spazio e comfort.

Situato al secondo ed ultimo piano, l'immobile è stato completamente ristrutturato nel 2023, con tetto rifatto ad inizio 2024.

La zona giorno open space con angolo cottura è dotata di due porte finestre che affacciano direttamente su un grande terrazzo, perfetto per godere di una vista mozzafiato sulle montagne circostanti. L'appartamento offre tre camere da letto, di cui due padronali ed una matrimoniale, oltre ad un altro locale ad uso ripostiglio, garantendo ampi spazi per tutta la famiglia. Il bagno finestrato è dotato di un moderno box doccia. Completano la proprietà un locale lavanderia all'esterno, accessibile dal terrazzo, un box auto singolo al piano terra ed un ulteriore posto auto coperto, offrendo praticità e comodità. Al piano terra si trova un ulteriore locale cantina.

La climatizzazione assicura comfort in ogni stagione. Un'opportunità unica per chi desidera vivere in un ambiente spazioso e ben collegato, essendo vicino ai principali servizi giornalieri.

L'immobile si presenta molto curato nel suo aspetto, in stile moderno/contemporaneo. Si vende con angolo cottura compreso nel prezzo, di noti marchi.

Per ulteriori informazioni contattateci in Agenzia e seguiteci su Facebook , cliccando 'mi piace' sulla pagina Ag. Tecnocasa Dueville ed Instagram. Scaricate gratuitamente l'App. Tecnocasa sul vostro smartphone e sarete sempre aggiornati sulle nostre proposte di vendita.

Mostra tutto

Nelle vicinanze

Trasporto pubblico Trasporto pubblico
Dueville
Dueville
780 m
Villaverla - Montecchio
Villaverla - Montecchio
2,9 Km
Passo di Riva
Passo di Riva
1,8 Km
Povolaro
Povolaro
1,9 Km
Ricariche auto elettriche Ricariche auto elettriche
NaturaSì La Decima Bio Dinamico Dueville BeCharge
1,8 Km
Scuole Scuole
Scuole
310 m
Scuola primaria San Giovanni Bosco
2,1 Km
Farmacia Farmacia
Farmacia Dueville
570 m
Farmacia Passo di Riva
1,7 Km
Farmacia Dott.ssa De Rogatis
1,9 Km
Supermercati Supermercati
A&O
670 m
Aliper
1,5 Km
Crai
2,4 Km
Davide
2,8 Km
Negozi Negozi
Panificio dai Fornari
330 m
LIO'
530 m
Panetteria Lorenzato
580 m
Spaccio Formaggi e Salumi
710 m
Bar Bar
Giannetto
480 m
Caffè Centrale
590 m
Bar ristorante la Fortuna
660 m
Bar Stazione
740 m
Bar
910 m
Ristoranti Ristoranti
Rigon
990 m
Lino's Pizza
1,6 Km
Bar Trattoria Vecchio Astico
1,8 Km
Pizzeria ristorante Al Caminetto
1,8 Km
Pizzeria Alle fornaci
2,3 Km
Mostra tutto

Caratteristiche

Rif.:
61153095
Piano:
2 di 3
Box:
1
Posti auto:
1
Terrazzi:
1
Camere da letto:
3
Mostra tutto
Prezzo Prezzo
€ 188.000
Rata mutuo Rata mutuo
€ 886 / mese
Spese annue Spese annue
€ 0
Proponi il tuo prezzoProponi il tuo prezzo

Classe Energetica

F
F
F
F
F
F
F
F
F
EP globale non rinnovabile:
166.29 kW h/m² anno
EP invernale del fabbricato:
EP estiva del fabbricato:
Anno di costruzione:
1967
Riscaldamento:
Autonomo
Tipo impianto:
A radiatori
Tipo alimentazione:
Metano

Ti interessa visionare l'immobile?

Fissa un appuntamento  Fissa un appuntamento

Richiedi informazioni

Clicca su Leggi per aprire l'informativa
* Questi campi sono obbligatori

Calcola il tuo mutuo

Semplice e senza impegno
Anticipo

( % )
Mutuo

( % )

pochi semplici passi

inserisci i tuoi dati
Questionario completato
Grazie per aver richiesto un appuntamento senza impegno con un nostro Consulente del Credito e Assicurativo.

Hai inserito correttamente tutti i dati necessari e a breve riceverai una e-mail con un link da convalidare per inviare i tuoi dati.
Affiliato
Studio Dueville Srl
Via G.Rossi, 43 36031 Dueville (VI)

Il nostro staff


  • Greta Baghin
    Affiliata

  • Anna Tessarollo
    Coordinatrice
Via G.Rossi, 43 36031 Dueville (VI)
Zona: Dueville-Passo di Riva-Povolaro-Vivaro
Mostra su mappa
Affiliato
Studio Dueville Srl
Via G.Rossi, 43 36031 Dueville (VI)

2026 Tecnocasa Franchising S.p.A. - P. IVA 08365160152 - Via Monte Bianco 60/A 20089 Rozzano (MI). Ogni agenzia ha un proprio titolare ed è autonoma. Privacy policy | Policy utilizzo | Cookie policy