Rustico in vendita

Dueville, Via Cartiera - Vivaro
€ 250.000
10 locali 10 locali
640 Mq 640 Mq
1 bagno 1 bagno

Rustico in vendita

Dueville, Via Cartiera - Vivaro

Descrizione annuncio

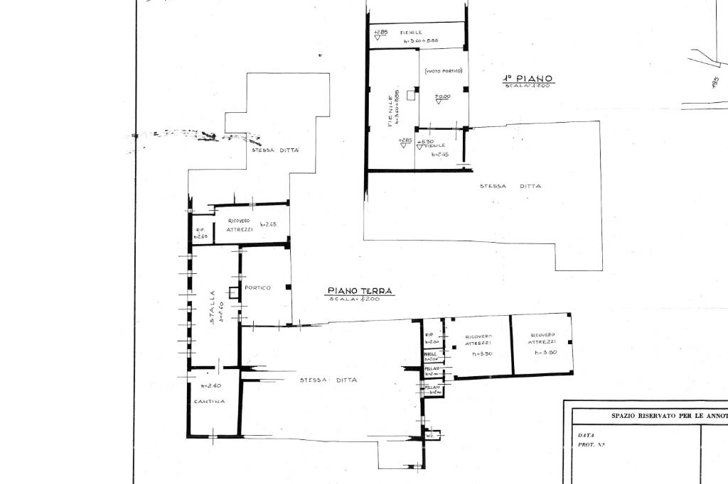
Nel località di Vivaro, nel comune di Dueville, si vende un affascinante rustico storico costruito intorno al 1930.

Questa proprietà, da ristrutturare completamente, offre ampie dimensioni con i suoi 640 mq distribuiti su più livelli.

L'immobile comprende molti locali, tra cui un ingresso, una cucina, un soggiorno, cinque camere da letto, un bagno, un ripostiglio, una grande soffitta ed un terrazzo. Oltre a un box e spazio per 10 o più posti auto tra interni ed esterni. Costruita come un'abitazione di campagna, da famiglie di contadini, è presente la stalla, il ricovero attrezzi ed il vecchio fienile. Il giardino che circonda la proprietà aggiunge un ulteriore tocco di fascino.

Caratterizzato dalla tranquillità della campagna, il rustico si trova in una zona che garantisce serenità pur essendo comoda al centro.

Grazie alle sue caratteristiche, questa proprietà rappresenta un'opportunità ideale per investitori, interessati a trasformarla in un condominio, delle villette di ultima generazione oppure un agriturismo in mezzo al verde della campagna!

La posizione strategica e le potenzialità di sviluppo rendono questo rustico un investimento di grande interesse.

ATTENZIONE: LA SECONDA FOTO E' STATA MODIFICATA CON AI (INTELLIGENZA ARTIFICIALE) PER AVERE UN'IDEA DELL'IMMOBILE RISTRUTTURATO.

Per ulteriori informazioni contattateci in Agenzia e seguiteci su Facebook , cliccando 'mi piace' sulla pagina Ag. Tecnocasa Dueville ed Instagram. Scaricate gratuitamente l'App. Tecnocasa sul vostro smartphone e sarete sempre aggiornati sulle nostre proposte di vendita.

Mostra tutto

Nelle vicinanze

Trasporto pubblico Trasporto pubblico
Dueville
Dueville
1,1 Km
Povolaro - Villa Patrizia
Povolaro - Villa Patrizia
2,1 Km
Povolaro
Povolaro
2,2 Km
Ricariche auto elettriche Ricariche auto elettriche
NaturaSì La Decima Bio Dinamico Dueville BeCharge
2,2 Km
Scuole Scuole
Scuole
1,4 Km
Scuola primaria San Giovanni Bosco
2,3 Km
Scuola Media Dante Alighieri
2,9 Km
Farmacia Farmacia
Farmacia Dueville
1,3 Km
Farmacia Dott.ssa De Rogatis
2,2 Km
Farmacia Passo di Riva
3,0 Km
Supermercati Supermercati
A&O
1,2 Km
Crai
2,2 Km
Aliper
2,5 Km
Eurospar
3,0 Km
Negozi Negozi
Spaccio Formaggi e Salumi
1,1 Km
Panetteria Lorenzato
1,2 Km
LIO'
1,3 Km
Panificio dai Fornari
1,5 Km
Bar Bar
Bar Stazione
1,1 Km
Bar ristorante la Fortuna
1,2 Km
Caffè Centrale
1,2 Km
Giannetto
1,3 Km
Pasticceria Eros
2,3 Km
Ristoranti Ristoranti
Pizzeria ristorante Al Caminetto
780 m
Rigon
840 m
Al Marinante
2,3 Km
Bar Trattoria 008
2,3 Km
Ai tre scalini
2,4 Km
Mostra tutto

Caratteristiche

Rif.:
61098478
Piano:
Su più livelli di 2
Totale piani:
2
Box:
1
Posti auto:
10
Terrazzi:
1
Mostra tutto
Prezzo Prezzo
€ 250.000
Rata mutuo Rata mutuo
€ 1.179 / mese
Spese annue Spese annue
€ 0
Proponi il tuo prezzoProponi il tuo prezzo

Classe Energetica

G
G
G
G
G
G
G
G
G
EP globale non rinnovabile:
350.70 kW h/m² anno
Anno di costruzione:
1930
Riscaldamento:
Autonomo
Tipo impianto:
A radiatori
Tipo alimentazione:
Metano

Ti interessa visionare l'immobile?

Fissa un appuntamento  Fissa un appuntamento

Richiedi informazioni

Clicca su Leggi per aprire l'informativa
* Questi campi sono obbligatori

Calcola il tuo mutuo

Semplice e senza impegno
Anticipo

( % )
Mutuo

( % )

pochi semplici passi

inserisci i tuoi dati
Questionario completato
Grazie per aver richiesto un appuntamento senza impegno con un nostro Consulente del Credito e Assicurativo.

Hai inserito correttamente tutti i dati necessari e a breve riceverai una e-mail con un link da convalidare per inviare i tuoi dati.
Affiliato
Studio Dueville Srl
Via G.Rossi, 43 36031 Dueville (VI)

Il nostro staff


  • Greta Baghin
    Affiliata

  • Anna Tessarollo
    Coordinatrice
Via G.Rossi, 43 36031 Dueville (VI)
Zona: Dueville-Passo di Riva-Povolaro-Vivaro
Mostra su mappa
Affiliato
Studio Dueville Srl
Via G.Rossi, 43 36031 Dueville (VI)

2025 Tecnocasa Franchising S.p.A. - P. IVA 08365160152 - Via Monte Bianco 60/A 20089 Rozzano (MI). Ogni agenzia ha un proprio titolare ed è autonoma. Privacy policy | Policy utilizzo | Cookie policy