Villa singola in vendita

Dueville, Via Astichelli - Passo Di Riva
€ 415.000
5 locali 5 locali
370 Mq 370 Mq
4 bagni 4 bagni

Villa singola in vendita

Dueville, Via Astichelli - Passo Di Riva

Descrizione annuncio

Scopri una villa singola situata a Passo di Riva, nel comune di Dueville, che unisce il fascino storico alla modernità e rusticità. Con una superficie di circa 330 mq, questa residenza signorile si sviluppa su più livelli, offrendo spazi ampi e ben distribuiti.

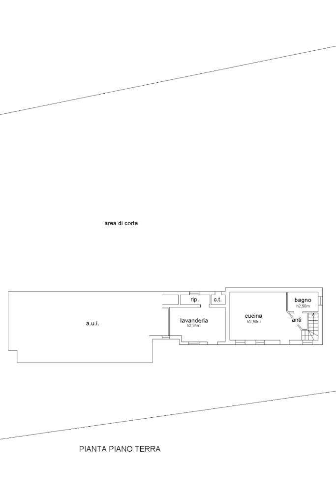
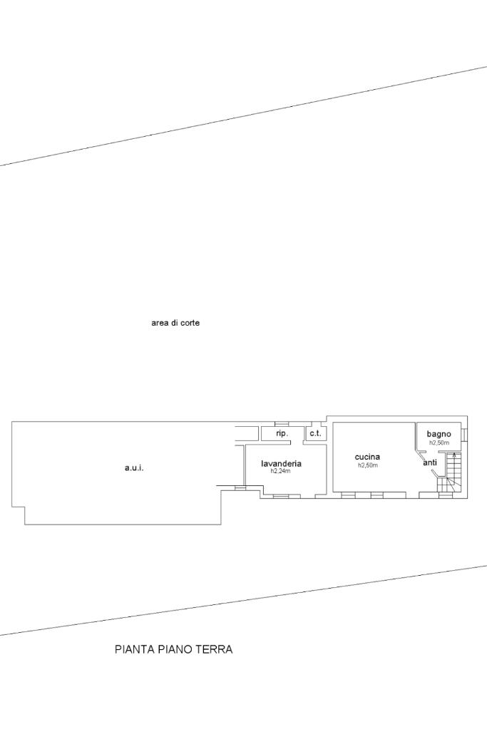
Al piano terra, troverai una cucina funzionale, un antibagno ed un bagno di servizio, oltre ad un'ampia lavanderia con centrale termica. Proseguendo per il piano primo troviamo un luminoso salone con caminetto, perfetto per momenti di relax. Un ulteriore locale usato come studio, una camera padronale con bagno privato, una camera doppia e per finire un bagno finestrato con vasca.

L’immobile dispone anche di un grandissimo garage di 80 mq, con ulteriori 80 mq di interrato, offrendo spazio per vari posti auto, un ripostiglio e un bagno aggiuntivo, completando l'offerta di questa residenza unica.

Esternamente circonda la villa 800 mq di giardino offrendo un’oasi di tranquillità e natura. Ideale per chi cerca spazi ampi ed una soluzione abitativa che coniuga eleganza e funzionalità.

La casa, costruita nel 1900 e ristrutturata completamente nel 1996, con ulteriori lavori nel 2007 si presenta in ottime condizioni. Tra le scelte dei materiali di rifiniture, ci sono pavimenti in legno e cotto toscano, serramenti/portoncino d'ingresso in alluminio, e tinteggiature esterne eseguite nel 2020.

Per ulteriori informazioni contattateci in Agenzia e seguiteci su Facebook , cliccando 'mi piace' sulla pagina Ag. Tecnocasa Dueville ed Instagram. Scaricate gratuitamente l'App. Tecnocasa sul vostro smartphone e sarete sempre aggiornati sulle nostre proposte di vendita.

Mostra tutto

Nelle vicinanze

Trasporto pubblico Trasporto pubblico
Dueville
Dueville
2,0 Km
Passo di Riva
Passo di Riva
950 m
Sandrigo - Caseificio
Sandrigo - Caseificio
1,7 Km
Ricariche auto elettriche Ricariche auto elettriche
NaturaSì La Decima Bio Dinamico Dueville BeCharge
2,0 Km
Scuole Scuole
Scuole
1,4 Km
Scuole Medie Montecchio Precalcino
2,3 Km
Scuole Elementari Montecchio Precalcino
2,3 Km
Scuola primaria San Giovanni Bosco
2,3 Km
Scuola secondaria di primo grado Giacomo Zanella
3,0 Km
Farmacia Farmacia
Farmacia Passo di Riva
1,1 Km
Farmacia Dueville
1,8 Km
Farmacia Dott.ssa De Rogatis
2,1 Km
Supermercati Supermercati
Aliper
1,3 Km
A&O
1,8 Km
Davide
1,9 Km
Prix
2,6 Km
Belmarket
2,7 Km
Negozi Negozi
Panificio dai Fornari
1,5 Km
LIO'
1,7 Km
Panetteria Lorenzato
1,8 Km
Spaccio Formaggi e Salumi
1,9 Km
Su Bazar
2,7 Km
Bar Bar
Bar
500 m
Bar Bianco Lattebusche
1,7 Km
Giannetto
1,7 Km
Caffè Centrale
1,8 Km
Bar ristorante la Fortuna
1,8 Km
Ristoranti Ristoranti
Lino's Pizza
850 m
Bar Trattoria Vecchio Astico
960 m
Pizzeria Alle fornaci
1,1 Km
Rigon
2,2 Km
Trattoria alle Quattro Strade
2,6 Km
Mostra tutto

Caratteristiche

Rif.:
61207302
Piano:
Su più livelli di 3
Totale piani:
3
Box:
1
Posti auto:
4
Camere da letto:
2
Mostra tutto
Prezzo Prezzo
€ 415.000
Rata mutuo Rata mutuo
€ 1.970 / mese
Spese annue Spese annue
€ 0
Proponi il tuo prezzoProponi il tuo prezzo

Classe Energetica

D
D
D
D
D
D
D
D
D
EP globale rinnovabile:
189.50 kW h/m² anno
EP invernale del fabbricato:
EP estiva del fabbricato:
Anno di costruzione:
1900
Riscaldamento:
Autonomo
Tipo impianto:
A radiatori
Tipo alimentazione:
Metano

Ti interessa visionare l'immobile?

Fissa un appuntamento  Fissa un appuntamento

Richiedi informazioni

Clicca su Leggi per aprire l'informativa
* Questi campi sono obbligatori

Calcola il tuo mutuo

Semplice e senza impegno
Anticipo

( % )
Mutuo

( % )

pochi semplici passi

inserisci i tuoi dati
Questionario completato
Grazie per aver richiesto un appuntamento senza impegno con un nostro Consulente del Credito e Assicurativo.

Hai inserito correttamente tutti i dati necessari e a breve riceverai una e-mail con un link da convalidare per inviare i tuoi dati.
Affiliato
Studio Dueville Srl
Via G.Rossi, 43 36031 Dueville (VI)

Il nostro staff


  • Greta Baghin
    Affiliata

  • Anna Tessarollo
    Coordinatrice
Via G.Rossi, 43 36031 Dueville (VI)
Zona: Dueville-Passo di Riva-Povolaro-Vivaro
Mostra su mappa
Affiliato
Studio Dueville Srl
Via G.Rossi, 43 36031 Dueville (VI)

2026 Tecnocasa Franchising S.p.A. - P. IVA 08365160152 - Via Monte Bianco 60/A 20089 Rozzano (MI). Ogni agenzia ha un proprio titolare ed è autonoma. Privacy policy | Policy utilizzo | Cookie policy